電磁脈沖閥是除塵器設備噴吹系統的配件之一,它主要起到噴吹布袋的作用,而除塵器的除塵效果好壞決定于除塵布袋的清灰是否好好工作。而電磁脈沖閥是噴吹布袋的主要元件,因此,除塵器是否能夠正常工作,電磁脈沖閥起著至關重要的作用。對于電磁脈沖閥的工作原理和內部結構人家_應該了解,才能讓電磁脈沖閥_的工作。
電磁脈沖閥的工作原理:
膜片把電磁脈沖閥分成前、后二個氣室,當接通壓縮空氣通過節流孔進入后天室,此時后氣室壓力將膜片緊貼閥的輸出口,電磁脈沖閥處于"關閉"狀態。脈沖噴吹控制儀電信號消失,電磁脈沖閥銜鐵復位,后氣室放氣孔關閉,后氣室壓力升高使膜片緊貼閥出口,電磁脈沖閥又處于"關閉"狀態。
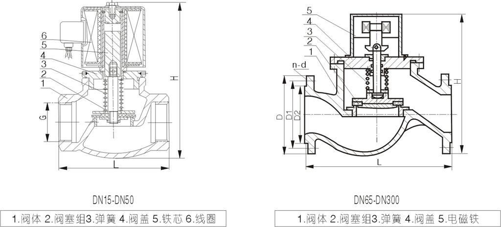
電磁脈沖閥的內部結構圖: 點擊圖紙可下載
諾和電磁脈沖閥的技術要求:
1、產品的工作壓力為0.1MPa~0.7MPa,介質為經過除油、除水處理的空氣。
2、在產品標稱氣源壓力狀態下,電磁閥的工作電壓為額定電壓的85%時,電磁脈沖閥的開啟響應時間應小于0.03s。
3、工作氣源壓力為0.1MPa時,即可使脈沖閥關閉。
4、產品應能承受0.8MPa的氣源壓力。
5、在規定的環境條件下,電磁線圈對外殼的絕緣電阻應大于1MΩ。
6、在室溫為 5度~35度,相對濕度不_85%的條件下,電磁線圈對外殼能承受50Hz、250V的電壓,歷時1min無擊穿現象。
7、電磁脈沖閥在承受頻率為20Hz、全幅值為2mm、歷時30min的振動后應能正常工作。
8、在正常使用條件下,膜片累計使用壽命應大于80萬次。
9、閥的外表無明顯涂層剝落、劃痕、毛刺等損傷。
10、旋噴吹用大口徑_低壓電磁脈沖閥供氣壓小于0.1Mpa,使用壓縮空氣,不受管網同時用氣的影響,運行穩定、可靠。(0.05~0.1Mpa)
泊頭諾和環保設備有限公司生產的電磁脈沖閥外形美觀,且材質過硬,使用壽命長的諸多優點。諾和公司_本公司生產的電磁脈沖閥在正常使用范圍內都可達到100萬次,如果在正常使用范圍內出現質量問題,我公司無償退款退貨。客戶的滿意_是檢驗我們工作_的標準。另本公司還_提供技術支持。公司服務熱線:0317-8315225 18034170669歡迎您的來電,來本公司考察,洽談業務。
電話:0317—8315225
傳真:0317—8315251